Maison vigneronne | Viborne

2006

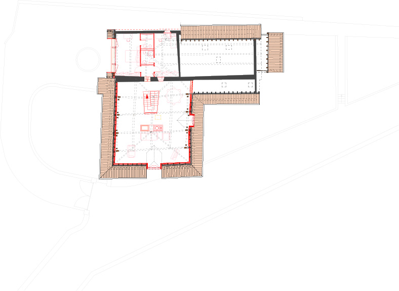
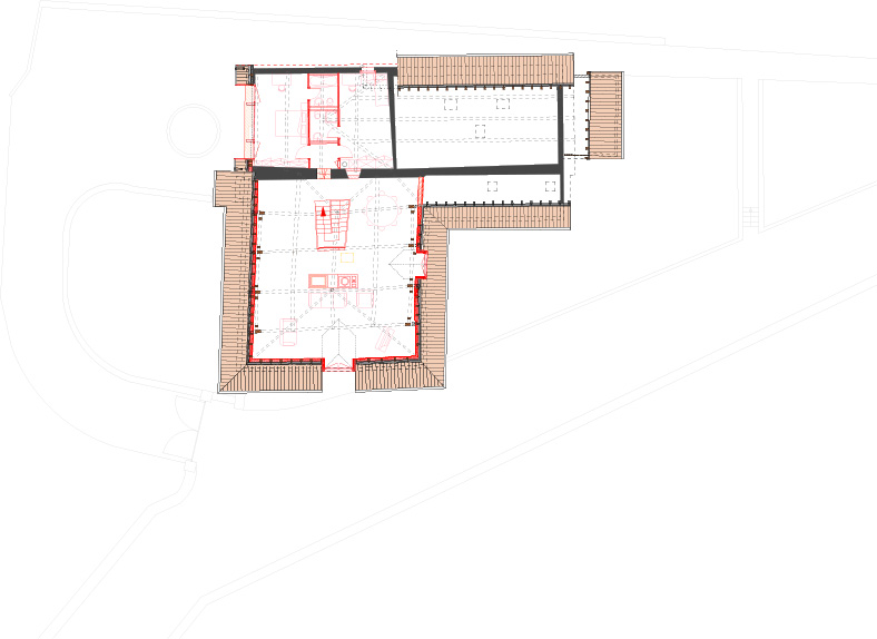
Maison vigneronne historique dont les dates découvertes sur place de 1754 et de 1627 témoignent de l’âge de la maison. La maison a été agrandie une fois, avant la seconde moitié du XIXe siècle, de locaux pour l’exploitation de la vigne, ainsi que d’un pressoir. Le plan de la construction d’origine est carré avec deux murs porteurs intérieurs en croix générant quatre espaces d’habitation au niveau cour et jardin. La cave en dessous et la grange au-dessus ne sont accessibles que depuis la route, seule façade dont on peut voir la maison sur toute sa hauteur. Dans ce projet de rénovation, la maison ne sera plus affectée qu’à l’habitation, hormis la cave à vin qui ne sera pas transformée. Les combles deviennent habitables et sont reliées au rez-de-chaussée par un nouvel escalier. La cuisine est aménagée dans les anciens locaux d’exploitation, le pressoir a été conservé comme témoin. Les ouvertures qui ont été créées en façade n’ont été réalisées que dans les parties les plus récentes du bâtiment de façon à en préserver l’aspect d’origine.


avant

après

avant

après

avant

après

avant

après

FICHE TECHNIQUE

Habitation 8 pièces
4 Chambres
4 salles de bain + 1 wc
1 cuisine – salle à manger
1 séjour
1 pièce disponible sous les combles