Collège de L’Épi d’Or | Cugy
2013-2014
Dans le cadre du développement du quartier de logements de L’Épi d’Or, une parcelle avait été réservée dans le plan d’aménagement afin de pouvoir crée un bâtiment d’infrastructure publique en cas de nécessité. La demande en places s’est faite rapidement et la commune de Cugy a choisi pour répondre à cette de demande de construire un nouveau bâtiment de 5 classes, une salle de rythmique ouverte au quartier, ainsi que des salles de travaux manuels et de cours d’appui. Compte tenu des besoins en places et du calendrier scolaire, l’opération générale de mise œuvre et des procédures d’autorisations ont dû être gérées dans des délais extrêmement brefs qui ont transformé ce projet en un véritable challenge… L’école a été ouverte dans les délais.
Le programme des locaux était d’autre part très dense proportionnellement à ce que le règlement de quartier offrait comme surface d’implantation pour le bâtiment sur cette parcelle, ainsi que pour la hauteur du gabarit le plus haut pour le volume émergé. Le travail sur la pente a permis de répondre à cette problématique tout en répondant aux problèmes de fonctionnalités, par exemple pour les entrées séparées pour l’enseignement et l’accès à la salle dédiée aux activités des collectivités publiques.
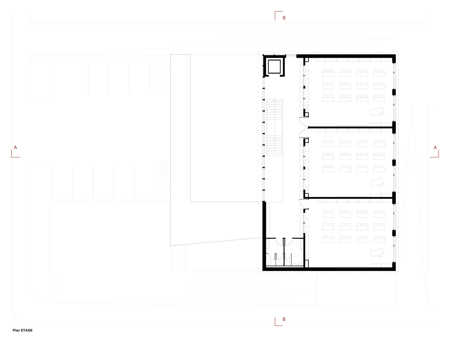
Le bâtiment est distribué à l’intérieur par un escalier droit se développant le long de la façade principale au Sud tandis que les salles de classes sont orientées au Nord. L’entrée de l’école est couverte d’un préau généreux tandis que la cour est ceinturée d’une marquise sous laquelle ont été installés des bancs pour que les élèves puissent s’abriter et s’assoir pendant leurs poses. Le bâtiment est labélisé Minergie.
FICHE TECHNIQUE
5 salles de classes 80m2
1 salle de dégagement 80m2
1 salle d’appui 15m2
1 salle des maîtres 60m2
1 salle de rythmique, vestiaires 200m2
9 places de parc
Préau partiellement couvert













