Immeuble locatif 15 appartements | Porsel Le Flon
2015-2017
La commune de Le Flon se situe sur l’axe Lausanne-Fribourg entre Oron-la-ville et Romont et comprend les villages de Pont, Porsel et Bouloz. Cette commune a pris son nom de la rivière qui la traverse dont la topographie de son territoire est formée principalement d’une vallée en pente douce au fond de laquelle s’écoulent les eaux de cette rivière en direction de Lausanne.
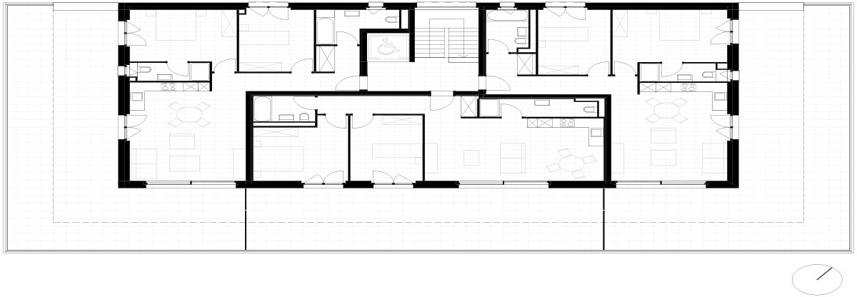
Le bâtiment étant situé entre deux localités de moyenne importance, les appartements ont été conçus de façon à offrir une habitabilité plus généreuse comparativement à celle que l’on peut trouver en région urbaine pour un prix équivalent. Les appartements sont ouverts sur des surfaces extérieures de qualité, des jardins au rez-de-chaussée, de grands balcons périphériques aux étages et de belles terrasses en attique. L’immeuble offre aussi toutes les commodités nécessaires en zone périphérique, des places de parc extérieures ou couvertes en suffisance, un abri généreux pour les vélos, des caves confortables ainsi que des buanderies équipées en machine pour chaque appartement.
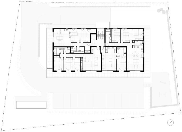
L’immeuble est implanté en s’adossant à la route de Romont tandis que les autres façades s’ouvrent d’Est en Ouest à la lumière et au paysage de la vallée, d’où l’on peut admirer prairies et forêts qui s’étendent de part et d’autre du Flon.
Les appartements de ce nouveau bâtiment se répartissent sur 3 niveaux + attique. Des aménagements extérieurs de jeux sécurisés ont été installés pour les enfants.
FICHE TECHNIQUE
Surface locative nette totale 1280m2
3 appartements 2.5 pièces 60m2
6 appartements 3.5 pièces 80m2
6 appartements 4.5 pièces 100m2
9 places de parc couvertes
12 places de parc extérieures
1 couvert à vélo














