Concours extension école | Riaz
2017
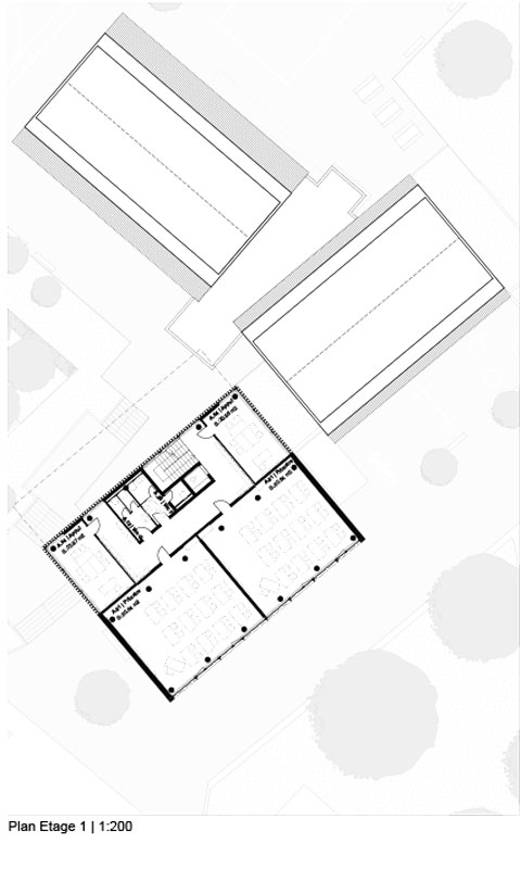
Le projet comprend la construction d’un bâtiment neuf pour compléter un bâtiment existant dont la surface est actuellement insuffisante pour disposer de huit salles de classe, une salle d’activités créatrices et des locaux d’accueil extrascolaire. Dans un objectif économique, le nouveau bâtiment pourra être construit indépendamment de la structure existante, sans intervention sur celle-ci. Ainsi seul des aménagements intérieurs seront nécessaires dans le bâtiment existant pour permettre à l’ensemble du projet de former une réhabilitation cohérente, fonctionnelle, sûre et économique.
FICHE TECHNIQUE
Ecole
4 Classes enfantines 98m2
4 Classes primaires 80m2
1 Bibliothèque 38m2
1 Salle de travaux manuels 78m2
1 Salle des maîtres 20m2
1 Réfectoire 83m2
Extrascolaire
2 Salles d’accueil extra-scolaire 22m2
2 Salles d’accueil 35m2







